DIRAGE
hamfair by
UBA / DST
ON4DST
ON0DST
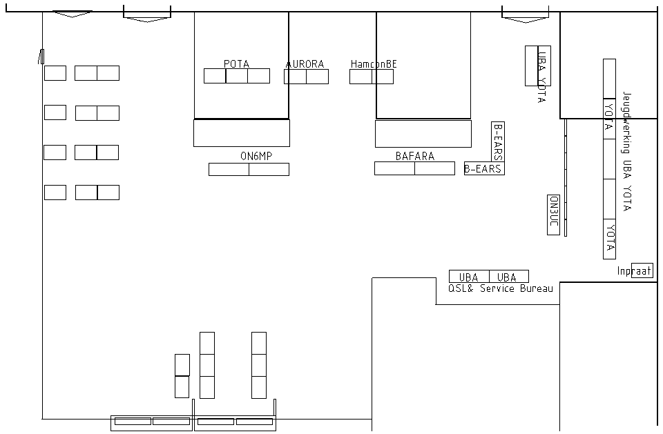
B-EARS
halls
hall 1
hall 2
The Foyer
price list
visitors
news
The Foyer